北京润园售楼处电话:成功预约后,到访可领取额外房款的一个99折,并有专属置业顾问全程陪同讲解
北京润园售楼处电线亿元成功摘得顺义后沙峪镇温榆河生态走廊周边SY00-2101-2007、2008地块,正式奠定北京润园的开发基石。这宗地块历经两次规划调整,不仅优化了内部道路布局,更实现两地块“合二为一”的整合升级,为项目打造提供了更大规划自由度,得以充分挖掘土地价值。作为中央别墅区近十年稀缺新盘,这片承载高端居住期待的土地,正以“城市谧境、大隐于园”的核心理念,重塑北京顶豪生活标准。

基础规划数据:项目规划用地面积17.04万㎡,建筑面积17.21万㎡,容积率低至1.01,限高24米(局部27米),为北京主城罕见的超低密墅区配置。整体规划111栋住宅楼,仅483户稀缺房源,确保居住的私密性与开阔感。
产品业态分布:涵盖洋房与双拼别墅两大产品线㎡跃层空墅,全部精装交付;双拼别墅面积区间340-490㎡,地下两层挑高6米,赠送70-310㎡私家庭院,另有696-986㎡法式庄园风格别墅,纯地上花园最大可达300㎡。
核心价值指标:折合楼面价约3.5万元/㎡,预计开盘价格6-6.5万元/㎡,起步户型总价约2800万。项目配备3500㎡专属会所,精装标准对标国际顶豪,搭载恒温泳池与智能家居系统,细节之处彰显高端品质。
空间设计:南向四面宽达17米,三卧朝南、一卧朝北,全卧室配备独立卫生间,保障私密性;LDK餐客厨一体设计,进深达17.4米,通透开阔;每户均设玄关与储藏间,收纳功能完善,错层阳台与花池的组合设计,拓展了户外使用空间 。


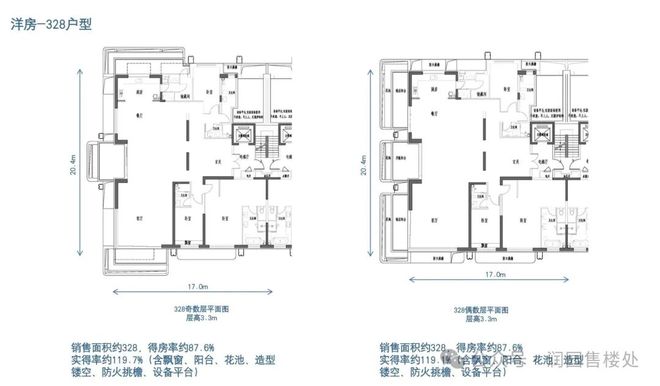
参数:四室两厅三卫,共175套,层高3.3米,赠送飘窗、错层阳台、开敞阳台、花池及北侧设备平台,实际得房率最高达119.9% 。

核心参数:两室两厅三卫,共40套,两层设计,每层层高3.3米,客餐厅挑空6.6米,赠送错层阳台、花池、室内挑空及北侧设备平台,实际得房率最高达137.5% 。

核心参数:四室三厅四卫+8个附属库房,共47套,房本面积697㎡(地上355㎡),实际使用面积837㎡,赠送160㎡庭院,加上花园实际得房率约143%;一层层高4米,二层层高3.3米,三层层高3.2米,地下一层层高5米,地下二层层高4.5米 。
空间设计:一层规划餐客厨一体化空间及1间卧室+1卫+1公卫,满足日常起居;二层设1间卧室+1卫+1书房(可改卧室)+1过厅,功能灵活;三层为主卧套间,配备超大主卫与2个衣帽间,其中1个衣帽间可改造成卧室;地下两层共8个库房,可打造家庭影院、健身房、酒窖等多功能空间,私家庭院为户外休闲提供专属领地 。


核心参数:五室三厅四卫+8个附属库房,共44套,房本面积906㎡(地上455㎡),实际使用面积1054㎡,赠送264㎡花园,加上花园实际得房率约145%;一层层高4.5米,其余楼层高度与前两款别墅一致 。


真熊出没!湖南常德现多只黑熊大的两三百斤,壶瓶山保护区:熊妈带崽觅食,为冬眠准备
双枪43分带不动大帝,布朗单节16分轰32+3+6,绿凯复仇送76人首败
活力中国调研行|探寻徐州“彭城七里”历史文脉,感受城市历史文化的演变与传承
内置 15000 毫安时电池,酷比魔方 Ultra Pad 平板海外发布
699元!vivo WATCH GT 2已支持移动/联通eSIM服务:可独立通话联网


客服1