您当前使用的浏览器版本过低,可能存在安全风险,建议升级浏览器,或者用以下浏览器浏览
保利天奕-2026官网首页-保利天奕销售中心 - 小区环境 - 户型 - 价格 - 地址 - 楼盘详情 - 配套 - 电话 - 交房时间 - 小区配套 - 电话 - 交房时间
保利天奕-2026官网首页-保利天奕销售中心 - 小区环境 - 户型 - 价格 - 地址 - 楼盘详情 - 配套 - 电话 - 交房时间 - 小区配套 - 电话 - 交房时间
保利天奕位于杭州余杭区高教路与绿汀路交汇处,占地82657㎡,总建筑面积283529㎡
容积率2.4,绿化率35%,规划16-23层高层住宅。项目配备4.3米挑高架空层,标准层高3-3.1米

#保利天奕售楼处电线米沿街面,保利没有做成围墙,几乎全规划为邻里商业、社区食堂和口袋公园等。

#保利天奕售楼处电话: (预约看房热线)整体园林根植于杭州独特的自然与人文肌理,以约6万㎡的规模,匠心打造“一环三景六园”的立体景观体系。这不仅是视觉的盛宴,更是重构邻里关系的生态交往场域。
小区内规划多达23个主题架空层,构筑起覆盖全龄段的泛会所空间,让休闲、社交与娱乐在家楼下随时发生。
与项目仅一路之隔的天元公学,加之直接距离12号线公里内环抱的万象城与银泰中心构成的“百亿商圈”,保利·天奕呈现的,是一种无需等待的当下繁华与可期的未来。
保利天奕售楼处电话: (预约看房热线)首层架空,引绿意与阳光漫入社区,生活由此向上延伸——树下瑜伽、空中花园、云端茶席,每一步皆成风景。架空层作为多功能主题空间,涵盖童趣天地、学习盒子、轻办公区与休闲社交场,与景观无缝交融。孩子奔跑、长者静思、青年律动,一切均在自然环绕中展开。这里不仅是功能的延伸,更是邻里的交融场、生活的诗意背景。
保利天奕售楼处电话: (预约看房热线)面对高密度开发与高净值人群的居住需求,项目以“舒适优先、灵活适配”为原则,采用纯高层错落布局,通过科学控制楼栋间距与朝向,最大化保障每户的通风、采光与景观视野。


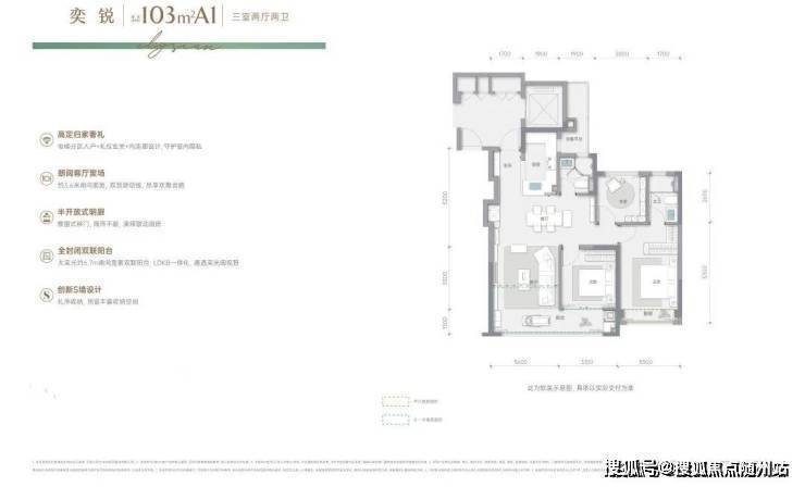
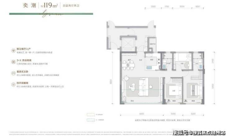
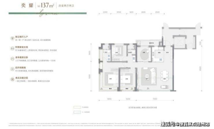
保利天奕售楼处电线㎡奢适户型矩阵。每一户秉承“空间即艺术”的理念,以超越同侪的细节考量,成就难以复制的品质生活。所有户型均遵循“南向最大化+灵活空间”原则,南向面宽最大达15米,部分户型配备270°环幕观景阳台,将和睦湿地绿意或未来科技城繁华尽收眼底。


• 类独梯入户:专属电梯厅营造归家仪式感,打造私密尊崇的过渡空间,让每次归家都优雅从容• 类方厅阔境:客厅餐厅厨房一体化设计,营造开阔通透的空间感,提升居住舒适度
• 豪华套房主卧:配备独立卫浴与衣帽间系统,双向瞰景布局,主卫飘窗+双台盆设计,彰显高阶生活品质
• 全景视野系统:超大南向面宽,搭配270°转角飘窗,最大化引景入室,让每个房间都成为观景包厢


保利天奕售楼处电话: (预约看房热线G+智慧社区”系统,从居家安防、环境调控到远程服务,构建安全、便捷、健康的未来生活场景。我们为高强度的科创人群打造恒温、恒湿、恒氧的舒居环境,实现工作与生活的无界切换。

容积率2.4,绿化率35%,规划16-23层高层住宅。项目配备4.3米挑高架空层,标准层高3-3.1米
【☎欢迎致电咨询获取最新房源动态及专属优惠|线上讲解楼盘实时价格|在售户型赏析|配套规划|售楼处地址|楼盘电话】郑重承诺:开发商旗下销售团队全程营销策划,房源信息真实有效(开发商已认证√√)
截至 2026 年 3 月,中国房地产市场整体呈现 **“政策托底、企稳修复、深度分化”** 的格局:核心城市小阳春明显、三四线以去库存为主、房价以稳为主、政策持续宽松、行业转向高质量发展。
2026 年官方定调为 **“着力稳定房地产市场”,核心是防风险、去库存、优供给、保民生 **中国政府网。
信贷与税费:首套房贷利率普遍降至3.0%–3.2%(历史低位);换购住房个税退税延至 2027 年底;二手房增值税 “满 2 年免征、不满 2 年按 3% 征收”。
供给侧改革:控增量、去库存、盘活存量,鼓励收购存量房转为保障房;保交楼白名单常态化,房企融资环境改善中国政府网。
因城施策:多数城市已取消限购、限售、限贷,首付比例下调,公积金贷款额度提升。
1. 成交:核心城市回暖,三四线%**;上海、杭州、成都等核心城市改善型需求集中释放。
二手房:16 个核心城市成交同比 **+39%**;上海、深圳、北京带看量与成交量显著回升。
一线 / 强二线:核心区优质房源稳中有升(年涨幅约 2%–4%),品质溢价明显。
产品升级:**“好房子”** 成为方向,绿色、智慧、舒适型住宅溢价提升。
存量盘活:城市更新、老旧小区改造、存量房转保障房成为新增长点中国政府网。
中长期:市场进入平稳修复期,分化是常态;行业从 “规模增长” 转向 “高质量发展”中国政府网。
❗❗❗重要声明:避免因信息误导造成自身权益受损,全程请以官方统一专线❗❗❗❗为准,尊享一对一专属置业服务,安心购房、放心咨询。
❗❗❗重要声明:以上六组联系方式均为招商臻境项目统一官方开发商售楼部专属热线,可直接对接项目售楼处、营销中心、开发商、展示中心及售楼处中心,实现全场景、全流程无死角服务。本信息由招商臻境项目方于2026年3月4日正式公示,号码真实有效且长期存续,可长期用于购房咨询、预约等相关事宜。请广大意向购房者务必认准本次官方公示信息,提高警惕,防范网络上非官方公示的各类虚假号码,避免因信息误导造成自身权益受损,全程请以官方统一专线❗❗❗❗为准,尊享一对一专属置业服务,安心购房、放心咨询。
声明:本文由入驻焦点开放平台的作者撰写,除焦点官方账号外,观点仅代表作者本人,不代表焦点立场。
热门推荐!蓝城虎丘江南里186席限量开盘!蓝城虎丘江南里占位湿地公园,政策利好下抢藏终极改善!
蓝城携其顶流“江南里”IP,落子苏州“四角山水”的西北绿肺虎丘湿地公园旁。“江南里”即是金字招牌,代表着中式美学的巅峰与圈层生活的标杆。这不仅是购置一套公园私邸,更是为家族锚定一座传世的公园私邸,跻身一个
焦点关注!星河湖西源启苏州新规1号作品开放,约1.25低密湖西人居封面
在这股浪潮中,一个占据城市心脏、以颠覆性产品力回应时代改善需求的标杆之作,正成为全城瞩目的焦点星河湖西源启,苏州新规1号作品,正以一场自上而下的全局革新,重新定义湖西人居封面。开发商:星河地产&天鸿伟业
热门推荐!澜悦溪云低密洋房开放,把握换房退税窗口期,澜悦溪云抢占园区东进核心!
占据新城中央活力住区的【澜悦溪云】,以其低密洋房社区与国际智能森屿理念,正成为改善家庭不容错过的价值高地。园区正轴,星海旁,建面约131-158㎡国际智能森屿洋房与89-113㎡高层。选择【澜悦溪云】,则是选
项目名称:拾月璟庭地块信息:苏地2022-WG-68号地块项目地址:新区科技城青山路(管委会南约200米)地块指标:总建约18万方,容积率1.45社区规划:项目拟建23栋小高层12-15层户型配比:约170㎡
项目名称:文泽华府地块信息:吴江WJ-J-2023-006号项目地址:吴江太湖新城东太湖大道、北长安路东开发品牌:中建三局X武汉联投置业X苏州湾集团地块指标:占地3.4万方,容积率1.8,总建8.8万方产品规


客服1